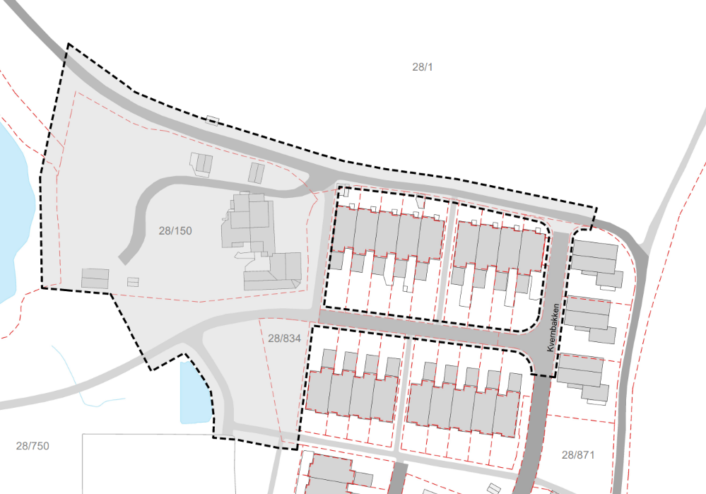
Planområdet og føremålet med planen
Føremålet med planen er å fortette eigedommen gbnr. 28/150 ved å legge til rette for utbygging av fleire bustader på eigedomen. Planinitiativet syner skisser av to nye einebustader med frittliggjande garasje. Det vert vurdert å opna for framtidig tomannsbustad der eksisterande bustad står.
Eigedomen er i Kommuneplanens arealdel sett av til bustader og blågrøn struktur.

Planarbeidet utløyser ikkje krav om konsekvensutgreiing etter plan- og bygningslova § 4-2. jf Forskrift om konsekvensutgreiing.
Det er samtidig varsla oppstart av forhandlinger om utbyggingsavtale etter plan- og bygningslova § 17-4. Dette vil mellom anna inkludere tema som eigedomsovertaking, endring av offentleg gangveg, gatelys og VA-infrastruktur.
Offentlege mynde, organisasjonar, naboar og grunneigarar som er råka av saken vil få eigen melding.
Kommunedirektøren ber om at eventuelle leietakarar og andre rettighetshavarar vert informert om planarbeidet.
Plandokument
Varslingskart, planinitiativ, stadsanalyse og referat frå møter med kommunen er lagt ved.
Prosess og medverknad
Innspel og merknader kan sendast til:
Arkitektkontoret Vest AS v/ Thorbjørn Fuglestad, Langgata 3, 4306 Sandnes, eller på e-post til: thorbjorn.fuglestad@arkvest.no med kopi til Time kommune, postboks 38, 4349 Bryne eller på e-post til post@time.kommune.no.
Fristen for å sende innspel er 03.03.2026.
Merknader vil ikkje svarast ut med eige brev, men blir heller referert til og kommentert i samband med politisk behandling.
Det vil og vere mogleg å ytra seg om planforslaget når det vert sendt på høyring og lagt ut til offentleg ettersyn etter førstegongsbehandling i Utval for lokal utvikling (ULK).
Du kan lesa deg opp på korleis ein planprosess foregår og korleis du kan koma med innspel her: Planprosess - Hovedportal
Vedlegg
Varslingsbrev til berørte parter.pdf (PDF, 71 kB)
Varslingskart Plan 202507.pdf (PDF, 3 MB)
Planinitiativ Gamle Aslandsvegen 15 15.01.2026.pdf (PDF, 10 MB)
Stedsanalyse Gamle Aslandsvegen 15.pdf (PDF, 9 MB)
Referat fra oppstartsmøte 24.11.25.pdf (PDF, 688 kB)
Referat fra arbeidsmøte 22.04.25.pdf (PDF, 330 kB)